Made the most of this beautiful location and the peaceful garden. Amanda and the team are a great asset to Simpsons, nothing is too much trouble! Comfy beds and plenty of space here at Tortet all added the recipe for a fabulous fortnight."

Our first trip to Mallorca and really enjoyed the villa, especially the pool. Some excellent recommendations for dinner and the local Simpsons team were fab. Thanks to Barbara at the airport, Amanda and Suzane."

Enjoyed our grown up family holiday here. Very peaceful and had everything we needed."

Read more reviews
award star icon

Looking to stay longer? Combine any of our Mallorca villa holidays with 3 nights at the luxurious Hotel Sant Jaume in Palma and discover the magic of this vibrant little capital. Please call us for details and prices.

At a glance
  • Sleeps 6
  • 3 bedrooms
  • 3 bathrooms
  • Free WiFi
  • Air conditioning
  • Swimming pool
Property highlights
  • Stylish and contemporary villa
  • Close to Pollensa
  • Beautiful countryside
  • Private location
  • Simpson family extras available
More details

This serenely stylish villa is a rare find. In the foothills of the Serra de Tramuntana, surrounded by countryside, it’s perfectly private with mountain views from its large garden, but also just a short drive from historic Pollensa and the renowned Pollensa Golf Course. For families or couples looking for more room, Ca'n Tortet is an easy choice – and our gallery images certainly don’t do it justice.

This serenely stylish villa is a rare find. In the foothills of the Serra de Tramuntana, surrounded by countryside, it’s perfectly private with mountain views from its large garden, but also just a short drive from historic Pollensa and the renowned Pollensa Golf Course. For families or couples looking for more room, Ca'n Tortet is an easy choice – and our gallery images certainly don’t do it justice.

From the light-filled, contemporary interiors, the meeting of inside and out is a seamless flow, from the fully equipped kitchen out onto the spacious terrace and into the lovely gardens.

And if you’re not relaxing by the private pool, pretty Pollensa is just a 5-minute drive away, where cafés, bars, shops and restaurants await, as well as the ancient Calvary Steps – a climb worth making for the views across town, as well as the little boutiques and delicatessens you’ll find on the way up. Or if you’re looking for sea and sand, Puerto Pollensa’s golden beach is 15 minutes away, where a pushchair friendly promenade also makes for a romantic evening stroll with a choice of restaurants to wine and dine in style.

Please note: some of the outdoor furnishings have been updated since our gallery images (1 to 7) were taken.

 


Explore our pre-bookable experiences in Pollensa & Puerto Pollensa


Treat yourselves! We're happy to arrange a private chef service for part or all of your holiday. Please see our Experience More page for more information.

Grading

Property Grading Key:

  • 5/5

    Excellent

  • 4/5

    Very good

  • 3/5

    Good

Close
  • Location

    4/5

  • Comfort

    4.5/5

  • Facilities*

    4/5

  • Proximity to beaches, restaurants and shops*

    4.5/5

Overall

4.2/5

* For further clarification on Facilities and Amenities, please view the 'Details' tab for each property or speak to one of our experienced sales consultants.

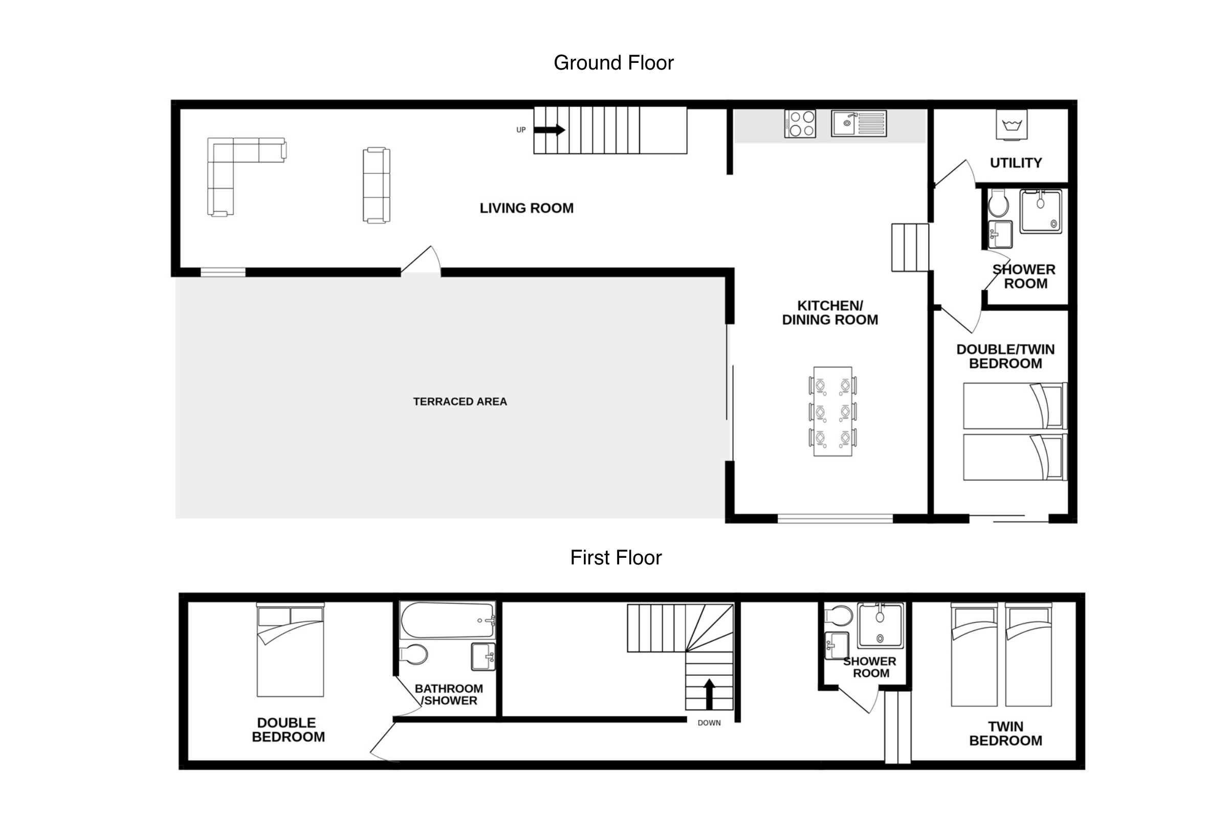
Accommodation

Layout

  • 3 bedroom villa (sleeps 2-6)

Ground floor

  • Living/dining room with Satellite TV (limited English-speaking channels)
  • Kitchen includes electric oven, gas and electric hob, microwave, fridge-freezer, dishwasher
  • Twin bedroom
  • Shower room
  • Laundry room with washing machine
  • Open plan staircase

First floor

  • Double bedroom with en-suite bathroom
  • Twin bedroom with en-suite shower room

General

  • Air-conditioned/heated throughout
  • Complimentary WiFi
  • Safe
  • Iron, ironing board, hairdryer, pool and bath towels provided
  • Light mid week clean included
  • Weekly clean and linen/towel change included for 2 week durations
  • Alarm if required
  • Portable barbecue
  • Private swimming pool 9.4m x 3.6m; min depth 1.2m max depth1.8m
  • Minimal road noise depending on the direction of the wind

Simpson family extras

  • Complimentary infant pack (includes cot/travel cot, bed guard, highchair, bottle steriliser, baby bath, non-slip bath mat, potty, stair gate - subject to property suitability)
  • Nappies and Babywipes – order at least 7 days prior to departure for delivery to your villa before you arrive
  • Car seats and booster seats can be provided at a supplement, subject to availability
  • Our pool fencing service is available at a supplement of £330 per week. The service is subject to availability and must be booked in the UK prior to departure. The fence will be in place for your arrival at the villa.
  • To pre-book any of our family extras please call 020 8392 5747
  • Private nanny service offering babysitting and full or half-day childcare packages. Please enquire for details.

WiFi

  • All properties with WiFi are able to support basic functionality such as web browsing and checking emails. We aim to offer an uninterrupted service but sometimes, due to factors beyond our control, reliability can be affected.

Villa access times

  • Check-in time – 4:00pm
  • Check-out time – 10:00am

Tourist licence (ETV): 8432


Location

  • Beach (Puerto Pollensa) 15min drive
  • Restaurants/shops (Pollensa) 5min drive
  • Palma airport 55min drive 

Car hire

Car options

When you book a flight-inclusive package holiday, the following hire car(s) are included in the price of your holiday:

  • 2-4 guests – 1 Group B, Peugeot 208 or similar*
  • 5 guests – 1 Group C, Citroën C3 Aircross or similar*
  • 6 guests – 2 Group B, Peugeot 208 or similar*

* All our cars include comprehensive insurance with no excess charge. For details of exclusions please view our Mallorca Booking conditions here.

Car specification

Group B – 1.2 litre engine, 2 large suitcases*

Group C – 1.4 litre engine, 3 large suitcases*

The following cars are available as alternatives on request (supplements apply). Please call our travel specialists for details.

Group CA, Citroën C3 Aircross Automatic or similar, 1.2 litre engine, 1 large and 2 medium suitcases*

Group PA, Peugeot 5008 Automatic (can be a 7 seater 5+2) or similar, 1.6 litre engine, 2 large and 2 small suitcases (less luggage space when being used as a 7 seater)*

Group Q, Ford Transit 9 seater or similar, 1.6 litre engine, 5 large suitcases*

* Suitcase sizes are based on a large suitcase being approximately 75cm x 41cm x 31cm, a medium suitcase of approximately 65cm x 46cm x 29cm and a small suitcase of 55cm x 40cm x 20cm.

Nestled in north Mallorca, picturesque Pollensa sits in the lee of the Tramuntana mountains, close to the glorious sandy beach at Puerto Pollensa. Its characterful Old Town is threaded with narrow cobbled streets and packed with atmospheric bars, cafés and restaurants, plus chic little shops for a foodie treat or essential new beach item. Climb the Calvari steps for a view over the whole town, or sit and watch the world go by in the bustling Plaza Major. The lively Sunday market is a top attraction for browsers and bargain hunters, and a great place to find tasty local produce for your villa barbecue or picnic on the beach.

Puerto Pollensa is ideal for a family holiday, with an easily-accessible, long, sandy beach, watersports and plenty of dining choices for all appetites. Take a stroll along the famous Pine Walk or drive out to the Formentor Peninsula for magical sunset views.

To complete the picture of your luxury holiday in Pollensa or Puerto Pollensa, we offer a selection of handpicked villas and a delightful agroturisme hotel, an inspiring blend of old and new for families and couples alike. For the best Pollensa beaches and things to do in the area, see our Guide to Pollensa below.


Explore our pre-bookable experiences in Pollensa & Puerto Pollensa


Location

    • Beach (Puerto Pollensa) 15min drive
    • Restaurants/shops (Pollensa) 5min drive
    • Palma airport 55min drive 

View holiday Booking Information

Total: $6,724

Customer testimonials

Made the most of this beautiful location and the peaceful garden. Amanda and the team are a great asset to Simpsons, nothing is too much trouble! Comfy beds and plenty of space here at Tortet all added the recipe for a fabulous fortnight.

Rachel, David, Susan and Peter September 2024

Our first trip to Mallorca and really enjoyed the villa, especially the pool. Some excellent recommendations for dinner and the local Simpsons team were fab. Thanks to Barbara at the airport, Amanda and Suzane.

Roger, Julie, Hannah and Rachel August 2024

Enjoyed our grown up family holiday here. Very peaceful and had everything we needed.

The Clark-Kingstons September 2022

A super week in a fantastic villa. We loved the pool and the location.

The Webb family September 2022

The pool, the view, the cool stairs, the big space...a peacock, mountains, birds of prey and goats: our girls summed it up really well as their favourite summer holiday so far! We'll definitely be back to Mallorca.

Kate, Jim, Emily and Ava September 2022

We thoroughly enjoyed our stay in this amazing villa and were sad to leave. The bedrooms were comfortable, the window shutters and air con meant we remained cool despite the heat. The kitchen had everything we needed, it was actually quite a pleasure to prepare our meals. Late evening we all relaxed on the lovely big corner sofa (we want one in our own house now) watching the big wall mounted TV. it felt like home! The swimming pool was constantly in use by all of us, with plenty of sun loungers and parasols for lying in the sun or shade. We ate all our meals at the lovely wooden table on the terrace, surrounded by the magnificent view of the surrounding hills. Even my son said it is a view you can’t get tired of! Simpson Travel arranged our hire car which all worked out great. We were able to easily drive into Pollenca for restaurants, bars and market in 5 minutes. Also an easy drive to Alcudia, Puerto Pollenca, Cala San Vicente. We came home yesterday and are already looking to book again for next year.

Christopher Webb June 2022

The villa was lovely. Superbly fitted and kitted out. Absolutely LOVE the polished concrete!. Also the quirky porthole windows in the bedroom gave us a wonderful opportunity to get up close and personal with a kestrel chick who landed there whilst waiting to be fed by its parents - such a treat! Thanks so much to Amanda who pitched it perfectly and made herself available but basically left us to it, which was what we wanted. Thank you to all who made it a brilliantly stress-free and relaxing holiday.

Simon Cowland June 2022

What a relief to be able to get away abroad after the last 18 months! The villa is lovely – superb views, comfortable and a lovely pool to cool off. Our third villa in Mallorca with Simpson Travel and this is the best so far. Restaurants in Pollença never fail to disappoint but our favourite was Onze (on the square), with Il Guardero and Nocho also worth a mention. Alcúdia well worth a visit – especially on market day. Road to Cap de Formentor is also a ‘must do’ if you haven’t been before. As always, the weather delivered. Look forward to returning in a few years’ time.

The Thomas family August 2021

Wow! What a wonderful villa and a wonderful holiday. The photos just don’t do the villa justice. We were super impressed on arrival and throughout the week. The villa was perfect for our 2-year-old (save for the stairs) and has all the things we could possibly have needed….cot , toys, plastic cutlery, pool. And lots for adults too – lovely loungers and big umbrellas and fab barbecue. Super impressed by Simpson Travel and will most definitely be booking again. A huge thank you to the homeowner too.

Russell, Seth, Lizzie & Amy September 2019

Sincere thanks to the house owner and Simpson for a lovely holiday in this very comfortable house. We arrived grumpy, hungry and thirsty after our 5-hour delay on the tarmac at Gatwick. We felt better almost immediately on arrival. I doubt a welcome pack has ever been devoured so quickly. We loved the house, pool, garden and fruit trees and really likes all the touches of swimming pool – blue everywhere. We all thought it would be the most comfortable house to stay in during bad weather, although after our bad start, we had fantastic weather. We loved Pollença market on Sunday, some delicious evening meals in Porto Pollença, a lovely day in Palma, the contemporary art museum on the sea front whilst our young people went cycling along the marina and then we all met up for paella and shopping. We all really enjoyed our pool time at the villa. Our only problem really was deciding whether to go out or stay in (quite a bit problem really!). Many thanks to Simpson and the house owners for sorting our power cut. Thank you for the leaving gift.

Wendy, Alan, Sarah, Ellie & Joe September 2019

Fantastic week at this fabulous villa, couldn’t ask for better weather and surroundings. Sad to be going home, but hope to come back soon (especially if Mum and Dad are paying again!).

The Moran and Bisgrove families June 2019

Not enough superlatives to describe our holiday at this wonderful villa. We will be back.

The Carey family May 2019

A wonderful villa in a stunning location. A truly great find. The villa is very clean, comfortable and tastefully furnished. Along with the tranquil setting, it has provided the perfect Easter break we were hoping for. Perfect location with short proximity to amenities and places to visit and ease of access to further afield. Simpson Travel – you have a great team! From the two ladies who met us at the airport, and Graham (thank you for your tips). Though early in the season and the pool was still cold our son nevertheless enjoyed it. We thoroughly enjoyed our time and we will certainly not hesitate recommending this villa to friends and family, and returning back ourselves.

Gareth, Ella, Oliver, Ben & Vangie April 2019

A lovely villa in a beautiful setting in a lovely part of Mallorca. We needed to relax and that is exactly what we did, not venturing very far. We loved Pollença for restaurants and the Sunday market. Treated ourselves to dinner at Hotel Son Brull which was amazing. Our special thanks must go to Graham for all his help. We hope to be back.

Colin & Diane September 2018

Another glorious two weeks at Ca’n Tortet, our favourite spot in a beautiful part of Mallorca and another great holiday from Simpson Travel. Some of our highlights were lunches beachside in Cappuccino at Puerto Pollença, drive through the mountains of Sóller – stunning scenery along the way, takes about an hour and a half depending on your photo stops. Lastly, Palma – a gorgeous city. Big thanks to Graham and all the Simpson Travel team for another brilliant holiday full of memories to treasure. The only reason we are now not too emotional to leave is due to collecting a new puppy on Sunday – otherwise we would be in tears!

Sara, Rich, Elliot & Georgia July 2018

Wow! A fantastic two weeks, what a lovely villa and great location. A few minutes from Pollença Old Town, with some great places to eat, and the Sunday market. With the best weather, we made the most of the pool and exploring this lovely island. All in all, a fab two weeks, sorry to be going home.

The Woodall Family June 2018

I liked the pool and swimming and having barbecues.

Maude (age 6) May 2018

Thank you for taking such good care of me during my stay at Ca’n Tortet. Such a special place. A few of my highlights include the mountains, the sound of the sheep, Pollença Port and the Pollença Old Town, Alcúdia has incredible sushi and the Hotel Son Brull for a sundowner. See you again soon.

Rachel May 2018

A lovely and very relaxing week in Ca’n Tortet. The views are beautiful and the pool made it very hard to leave each day. We managed a few short trips to Pollença and the Calvari Steps and to Puerto Pollença for harbourside walks and ice cream.

Deb, Sandra, Timothy & Garry May 2018

Wow – what a beautiful villa. So stylish, well equipped and the view is absolutely spectacular! We have been to Mallorca twice before and love it. This was our first time with Simpson Travel but it will not be our last – fantastic service from the beginning to end. Claire and Graham were so friendly and a big thank you to Juan too. We enjoyed so many amazing places – we highly recommend Bellaverde in Puerto Pollença (especially for their brilliant children’s play area) and Alcúdia Old Town was lovely too. We had a fabulous day at Formentor beach. We also enjoyed a walk from the villa to Pollença – 45 minutes and even the boys made it and we also walked up the Puig de Maria – you can see the villa from the top. All in all, a fabulous villa in a fabulous location – we don’t want to leave!

Elle, Simon, Edison, Austin & Evan April 2018

This was our first visit to Spain and our first time using Simpson Travel. All I can say is, WOW! I wish we had this company over in Canada! We truly enjoyed our time here and feel there is so much more we would have loved to explore. We have two children (ages 5 and 2) and they loved playing in the house, on the grass and even in the pool. Graham was an amazing host and brought some toys by, which our children loved. As for our adventures, we enjoyed the Sunday market, the Calvary Steps, Moro Beach, the lighthouse (the drive was amazing with spectacular views). Make sure to bring an extra layer, it was quite windy and chilly up there! Our children absolutely loved the train ride from Bunyola (beautiful little town) to Sóller, also, a beautiful place to wander, people watch and to enjoy some tapas in the square. Every evening we had wonderful meals (weather was gorgeous) and enjoyed the sunsets over the mountains. This villa is stunning and extremely comfortable. It is the perfect size for our party of seven. We were so happy to meet our travel friends (whom we met 15 years ago on our honeymoon) and spend a wonderful week with them. Thank you for the hospitality. We've stayed in lots of villas and this is the best one. First time with Simpson Travel, very impressed. Graham is an excellent rep, non-intrusive, but friendly, genuine and helpful.

Mrs R April 2018

The usual high standard we have come to expect and enjoy from Simpson Travel. Quality accommodation in well considered locations. Didn't disappoint this year at a new villa. Always a pleasure using them.

Mr Kell October 2017

We've stayed in lots of villas and this is the best one. First time with Simpson Travel, very impressed. Graham is an excellent rep, non-intrusive, but friendly, genuine and helpful.

Caroline & Bob October 2017

Thank you for a fabulous holiday, the villa was new for this season and I think it will prove to be very popular. Great layout and feel about the place. We would be tempted to go back and we rarely go the same place twice.

Mrs Moores September 2017

Simpson Travel provide an efficient and friendly service from our first contact by phone to delivery of the holiday we had booked. First time we have had a travel representative and it really helped us to sort out some local issues like best beaches, parking and nearest shops, etc. A real bonus.

Mr Harding September 2017

Many thanks for a wonderful week in Mallorca, staying in this beautiful villa. From the moment we saw it, we knew we would enjoy our stay here. Stylish, comfortable, beautifully and tastefully designed. We enjoyed Pollença very much – the market, the Calvari Steps, restaurants. The beaches were fabulous and the weather ideal! Thank you Graham for being so helpful and for sorting things out so promptly. We hope to be back. Absolutely loved this villa and the views!

Marcella, Greg, Joseph, Mia & Rafa August 2017

Thank you Simpson Travel for a wonderful week at this lovely villa. Though only stayed a week, we managed to pack in a whole bunch of goodies as well as enjoying the villa and pool. Things we found interesting were: a day in Palma around the Cathedral area. Half day boat hire around the bay. Early morning coffee in Pollença along with dinner in the side streets, Calvari steps and views, Sunday Market. Sunset at Formentor Peninsula. Day/eve in Old Town Alcúdia. A drive through the beautiful mountains and lunch in Puerto Sóller. Many thanks Graham and the team. First time to Mallorca but already planning next trip.

Des, Kath, Ollie & Maddie August 2017

This was our second villa holiday with Simpson Travel, last year to Corsica and this year in Mallorca. Both holidays have been outstanding and we would definitely recommend Simpson Travel as its now our first port of call for our holidays. Thank you.

Mrs Hyams July 2017

What an amazing place. Beautiful house, lovely garden, fab pool and great views. totalling relaxing holiday. We'll definitely be back. thanks.

Ralph & Sue June 2017

Simpson Travel was outstanding with every aspect of the holiday. The villa, garden and pool were absolutely superb. They are by far the best travel company we have used and would highly recommend them to anyone.

Mrs Buer June 2017

Spacious and airy – the house is beautiful – well done! The pool is a treat and we made friends with the sheep. Unfortunately we didn't watch TV– just too much to do like sleeping, resting, relaxing and enjoying this perfect pool and location – many thanks.

Allie & Peter May 2017

What a joy to stay in this perfect place. So quiet and relaxing. Lovely location and fab accommodation. Great little town with vibrant market and shops. No shortage of brilliant restaurants in Pollença. The week has flown by, can't wait to come again. Thank you Graham and Juan.

Mr & Mrs Roberts May 2017

Why choose Simpson Travel